https://www.thelandsite.co.uk/files/properties/cbfbbb50603211e98dac024b03131eda/74-69dd55db74797640440170.jpeg

Land for sale in Folkestone

Land Adj. 20 Darlinghurst Road, Fronting Bowen Road, Folkestone, Kent
For sale
£95,000
AUCTION PROPERTY
clive-emson-auctioneers
This property is marketed by:
Clive Emson Auctioneers
A freehold site situated to the rear of 20 Darlinghurst Road, fronting Bowen Road and being offered with planning permission for three flats.

Planning
Planning Permission has been granted on appeal by Folkestone & Hythe District Council, dated 6th August 2024 under reference: APP/L2250/W/24/3341541 for the re-development of the site to provide three one-bedroom flats under application 21/2389/FH, subject to conditions.

Copies of the Planning Application, Appeal Decision and accompanying documentation can be downloaded from the Local Planning Authority website: folkestone-hythe.gov.uk

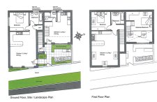
Proposed Accommodation
Flat 1
Ground Floor
Open plan kitchen/living/dining room, bedroom and bathroom/W.C.

Flat 2
Ground Floor
Entrance hall with stairs to:
First Floor
Open plan kitchen/living/dining room, bedroom and bathroom/W.C.

Flat 3
Ground Floor
Open plan kitchen/living/dining room, shower room/W.C., stairs to:
First Floor
Galleried bedroom.

Outside
Communal courtyard area providing cycle lockers and bin store.

Freehold with Vacant Possession

Important:
All lots are sold subject to the Common Auction Conditions and Special Conditions of Sale (unless varied by the Sellers Solicitors), together with the Addendum, which will be available on the Auction Day.


Price Information
*Guides are provided as an indication of each Seller's minimum expectation. They are not necessarily figures at which a property will sell for and may change at any time prior to Auction. Unless stated otherwise, each Lot will be offered subject to a reserve (a figure below which the Auctioneer cannot sell the Lot during the Auction). We expect the reserve will be set within the guide range or no more than 10% above a single figure guide. Please check our website regularly at www.cliveemson.co.uk, or contact us on 01622 608400, in order to stay fully informed with the up-to-date information.

*An Administration fee and Other non-optional fees may also be payable in addition to the bid price. All lots are offered subject to the Common Auction Conditions and Special Conditions of Sale or Revised Special Conditions of Sale (as applicable) and may include the repayment of search and other fees and or costs payable by the buyer. All buyers are advised to inspect all available legal documentation prior to bidding and will be deemed to fully understand what they may be liable for if they are successful in purchasing. This should also include Stamp Duty, Land Registry fees and VAT which may become payable on completion in line with any property transaction, whether it is by auction or private treaty. If, as a buyer, you are in doubt you should seek advice from your own professional advisors. For more information on fees please go to www.cliveemson.co.uk/buyers-fees/

Find Professionals in your search area

Contact us via [email protected]