https://www.thelandsite.co.uk/files/properties/cbfbbb50603211e98dac024b03131eda/74-6a175b5f8b438802946899.jpeg

Investment for sale in Helston

Kennack Sands Pottery and Bar, Kuggar, Ruan Minor, Helston, Cornwall
For sale
£390,000
AUCTION PROPERTY
clive-emson-auctioneers
This property is marketed by:
Clive Emson Auctioneers
Situated on the renowned Lizard Peninsula with the sought after Kennack Sands close by, along with numerous holiday parks neighbouring, is this well known property known as Potters Bar.

Potters Bar (previously a Pottery) offers great versatility and currently provides a freehouse public house with approximately 50 covers, caf, outside seating area, detached souvenir shop, three-bedroom owner's accommodation (with sea views from 1st floor) plus gardens and parking. The property would now benefit from a course of updating throughout, or some may envisage complete re-development of the site, subject to all necessary consents being obtainable.

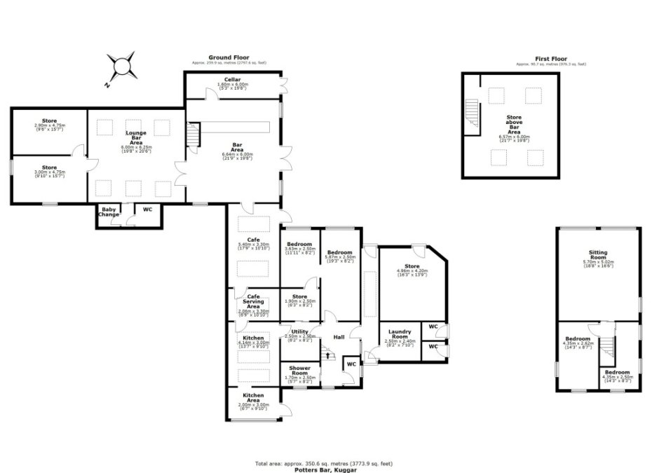
Public House
Ground Floor
Open-plan bar and seating area opening through to further seating area. W.C. and baby changing facilities and two store rooms.
Caf/tea room with seating and serving area.
First Floor
Attic/store room.
EPC Rating
B (42). Total Floor Area 171 sq.m.

Owner's Accommodation
Ground Floor
Kitchen breakfast room, two prep rooms, large pantry, inner hall, bedroom, office, W.C. and shower room.
First Floor
Two bedrooms and living/dining room.
EPC Rating F
Council Tax Band C

Souvenir Shop - Detached
Open-plan shop area and store room beyond.
EPC Rating
C (53). Total Floor Area 56 sq.m.

Outside
The front of the property provides off-road parking in front of the souvenir shop, outside seating for the public house along with W.C. facilities plus an array of outbuildings. To the rear there are two enclosed good sized well stocked gardens.

Site Measurements
The site extends to approximately 0.11 hectares (0.23 acres).

Local Planning Authority
Cornwall Council. Tel: 0300 1234 151. Website: cornwall.gov.uk.

Auctioneer's Note
We have been informed by our vendors that the only part that is currently open is Potters Bar.

Freehold with Vacant Possession

Residential EPC: F


Commercial EPC: B


Important:
All lots are sold subject to the Common Auction Conditions and Special Conditions of Sale (unless varied by the Sellers Solicitors), together with the Addendum, which will be available on the Auction Day.


Price Information
*Guides are provided as an indication of each Seller's minimum expectation. They are not necessarily figures at which a property will sell for and may change at any time prior to Auction. Unless stated otherwise, each Lot will be offered subject to a reserve (a figure below which the Auctioneer cannot sell the Lot during the Auction). We expect the reserve will be set within the guide range or no more than 10% above a single figure guide. Please check our website regularly at www.cliveemson.co.uk, or contact us on 01622 608400, in order to stay fully informed with the up-to-date information.

*An Administration fee and Other non-optional fees may also be payable in addition to the bid price. All lots are offered subject to the Common Auction Conditions and Special Conditions of Sale or Revised Special Conditions of Sale (as applicable) and may include the repayment of search and other fees and or costs payable by the buyer. All buyers are advised to inspect all available legal documentation prior to bidding and will be deemed to fully understand what they may be liable for if they are successful in purchasing. This should also include Stamp Duty, Land Registry fees and VAT which may become payable on completion in line with any property transaction, whether it is by auction or private treaty. If, as a buyer, you are in doubt you should seek advice from your own professional advisors. For more information on fees please go to www.cliveemson.co.uk/buyers-fees/

Find Professionals in your search area

Contact us via [email protected]