https://www.thelandsite.co.uk/files/properties/29b248f2f41811e992280afeec538f48/680-69ca2597f2f08853583817.jpeg

Former Greenfield Land With Planning Consent in Wickford, Essex, SS12

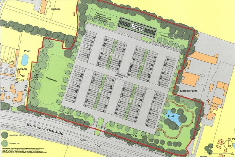
Morbec Farm, Arterial Road, Wickford, Essex, SS12 9JF
For sale
POAExclusive
glenny
This property is marketed by:
Glenny

Former Green Field parcel of commercial land measuring approx 14 acres 

Key Features

  • Freehold Site
  • Planning Consent Granted
  • Accessed directly from the A127

Description

The site comprises a former Green Field parcel of land measuring approximately 14 acres situated directly off the A127. Planning consent has been granted for a lorry park with new vehicular access off the A127 together with a building providing ancillary facilities for lorry drivers. (Reference: 24/01181/OUT. The site is roughly rectangular with parts of the site cleared, parts vegetated and wooded.

Location

Wickford is situated 13 miles east of central London, 30 miles south of Chelmsford and 4 miles north of Basildon accessed via the A127 and A130 Arterial Roads providing direct links to the M25 and national motorway network.


Find Professionals in your search area

Contact us via [email protected]