https://www.thelandsite.co.uk/files/properties/cbfbbb50603211e98dac024b03131eda/74-6990ece56954d405406938.jpeg

Land for sale in Ashford

Land Off Longacre Road, Singleton, Ashford, Kent
For sale
£480,000
AUCTION PROPERTY
clive-emson-auctioneers
This property is marketed by:
Clive Emson Auctioneers
An essentially level site, extending to 0.57 hectares (1.4 acres), located in the popular residential area known as Singleton, close to Great Chart Primary School. It lies to the south-west of Ashford town centre with its range of retail shops and leisure facilities, with Ashford International Railway Station and the McArthurGlen designer outlet centre also within close proximity.

Planning
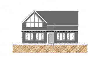
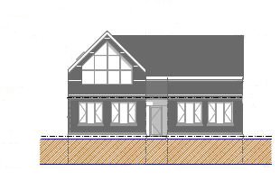
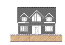
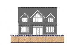
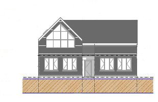
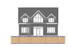
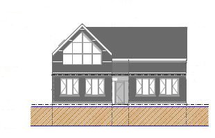
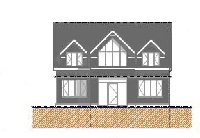
A full planning application for the erection of nine detached houses and associated works/landscaping was submitted to Ashford Borough Council under ref: 22/00790 and validated on 30th May 2022 with the determination level quoted as "Delegated", subject to resolution of the credits required to counteract the Stodmarsh issue. The proposed scheme shows a central road with turning head at the rear of the site. Four Type A four-bedroom houses and five Type B three-bedroom houses. Each house has gardens and parking.

Proposed Accommodation

Type A Houses
Ground Floor
Entrance hall, living room, kitchen/dining room, utility, cloakroom/W.C., study and store.
First Floor
Landing, main bedroom with ensuite and dressing room, bedroom 3 with ensuite, two further bedrooms and family bathroom.

Type B Houses
Ground Floor
Entrance hall, L shaped living room/dining room, kitchen, utility, cloakroom and study.
First Floor
Landing, main bedroom with en-suite dressing room, bedroom 2, bedroom 3 with en-suite and separate family bathroom.

Planning - Lapsed
Outline planning permission was granted by Ashford Borough Council under ref: OL/11/01045, dated 15th January 2014, for the erection of up to 14 dwellings with access to be considered in detail and all other matters of appearance, layout, scale and landscaping to be reserved for future consideration.

A subsequent application of reserve matters was approved for the appearance, landscaping, layout and scale in relation to the erection of 12 dwellings which was granted by Ashford Borough Council under ref: 17/00703, dated 8th August 2017, subject to conditions.

A copy of the live and lapsed planning information can be obtained from Ashford Borough Council. Website: ashford.gov.uk.

Freehold with Vacant Possession

Important:
All lots are sold subject to the Common Auction Conditions and Special Conditions of Sale (unless varied by the Sellers Solicitors), together with the Addendum, which will be available on the Auction Day.


Price Information
*Guides are provided as an indication of each Seller's minimum expectation. They are not necessarily figures at which a property will sell for and may change at any time prior to Auction. Unless stated otherwise, each Lot will be offered subject to a reserve (a figure below which the Auctioneer cannot sell the Lot during the Auction). We expect the reserve will be set within the guide range or no more than 10% above a single figure guide. Please check our website regularly at www.cliveemson.co.uk, or contact us on 01622 608400, in order to stay fully informed with the up-to-date information.

*An Administration fee and Other non-optional fees may also be payable in addition to the bid price. All lots are offered subject to the Common Auction Conditions and Special Conditions of Sale or Revised Special Conditions of Sale (as applicable) and may include the repayment of search and other fees and or costs payable by the buyer. All buyers are advised to inspect all available legal documentation prior to bidding and will be deemed to fully understand what they may be liable for if they are successful in purchasing. This should also include Stamp Duty, Land Registry fees and VAT which may become payable on completion in line with any property transaction, whether it is by auction or private treaty. If, as a buyer, you are in doubt you should seek advice from your own professional advisors. For more information on fees please go to www.cliveemson.co.uk/buyers-fees/

Find Professionals in your search area

Contact us via [email protected]