https://www.thelandsite.co.uk/files/properties/cbfbbb50603211e98dac024b03131eda/74-696fc62c4d63b284974370.jpeg

Investment for sale in Maidstone

Victoria House, 36 Albion Place, Maidstone, Kent
For sale
£590,000
AUCTION PROPERTY
clive-emson-auctioneers
This property is marketed by:
Clive Emson Auctioneers
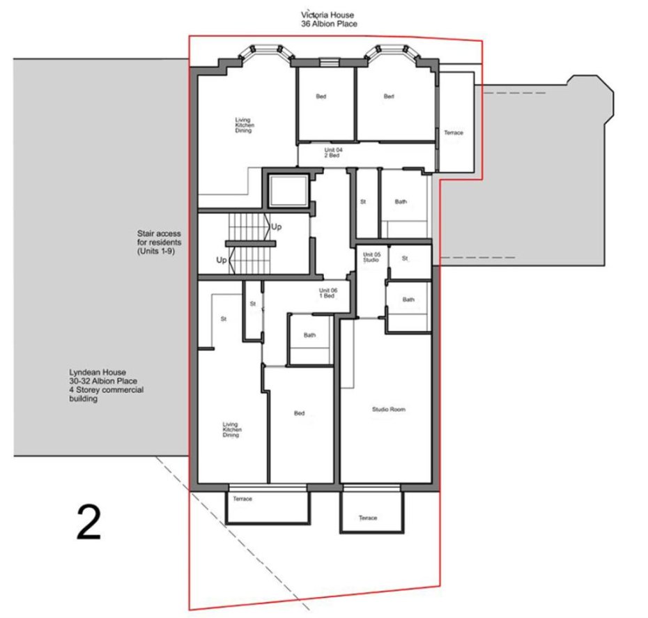
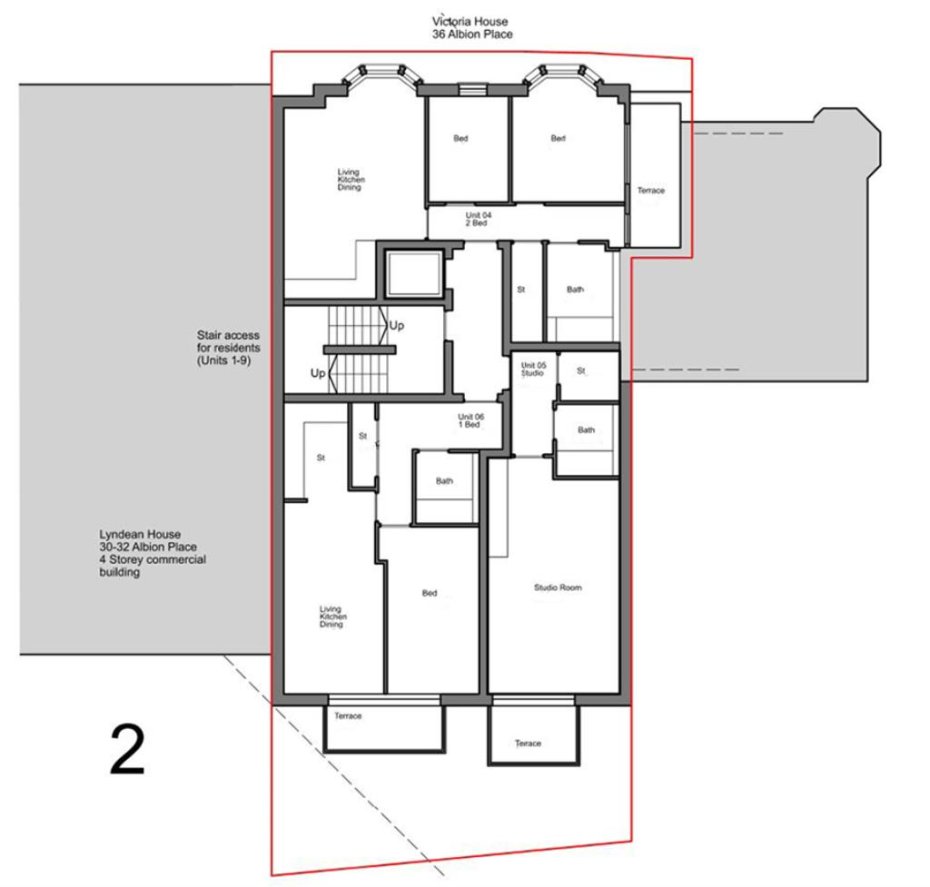
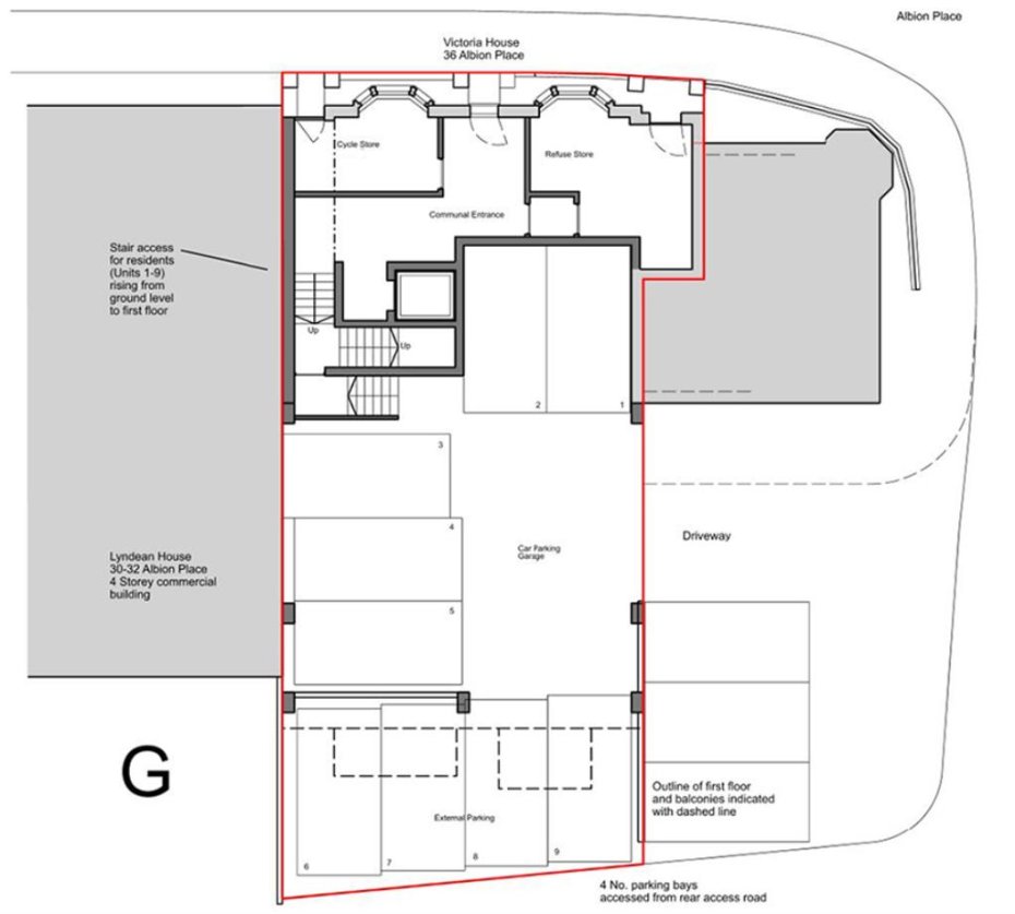
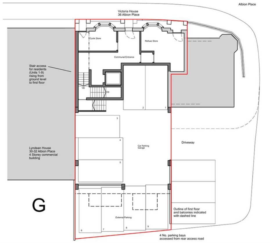
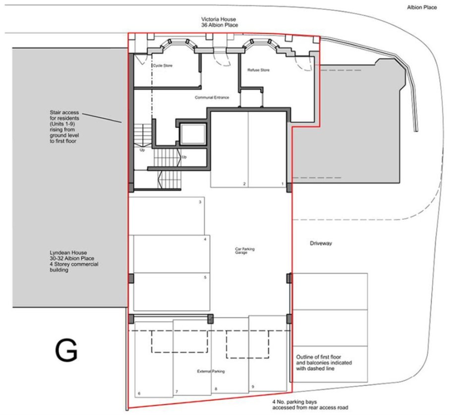
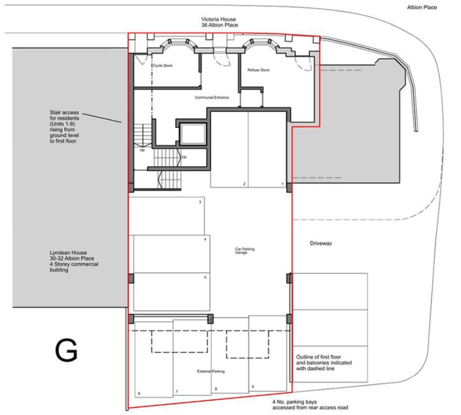
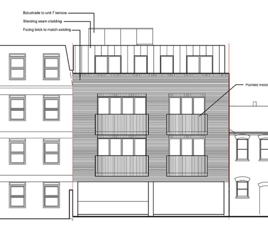
A two storey former office building with Planning Consent for nine flats, is located a short distance from Maidstone town centre, convenient for a range of local amenities including shops, schools, restaurants and Maidstone East mainline railway station.

Planning
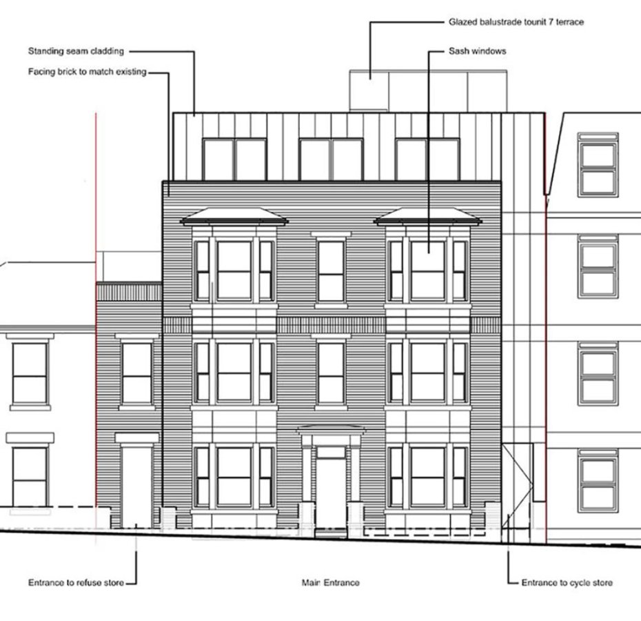
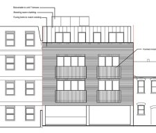
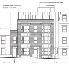
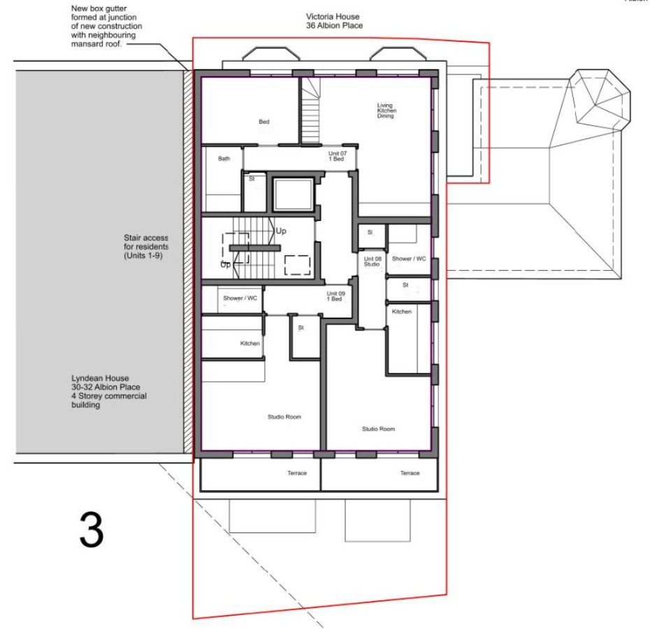
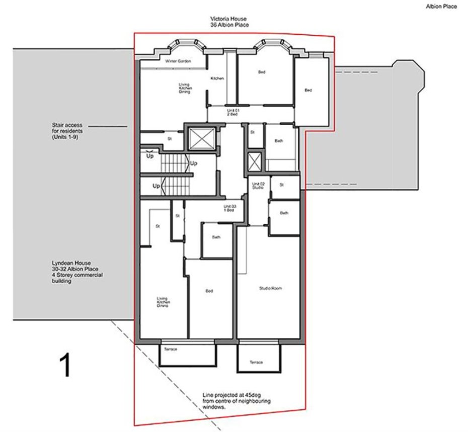
Planning Permission has been granted under reference 25/503344/FULL, dated 13th November 2025, for part demolition of existing property, erection of a two storey side and extension to rear and two additional floors to form nine residential flats including provision of nine car parking spaces within under croft area and to rear provision of cycle and refuse storage within the ground floor, subject to conditions.

A copy of the Planning Permission and accompanying documents may be downloaded from the Local Planning Authority website, Maidstone Borough Council. Tel: 01622 602736. Website: maidstone.gov.uk.

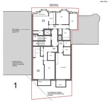
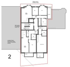
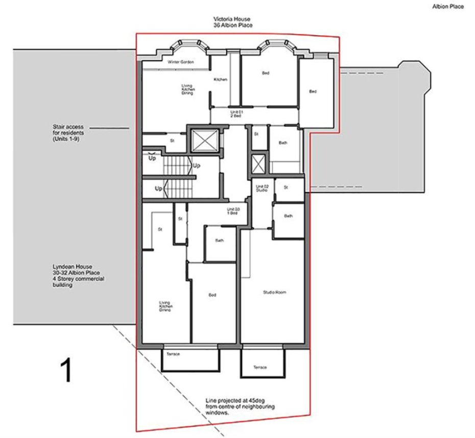
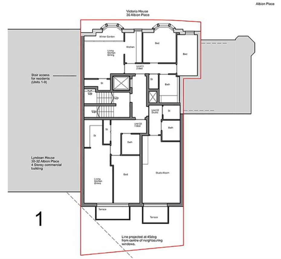
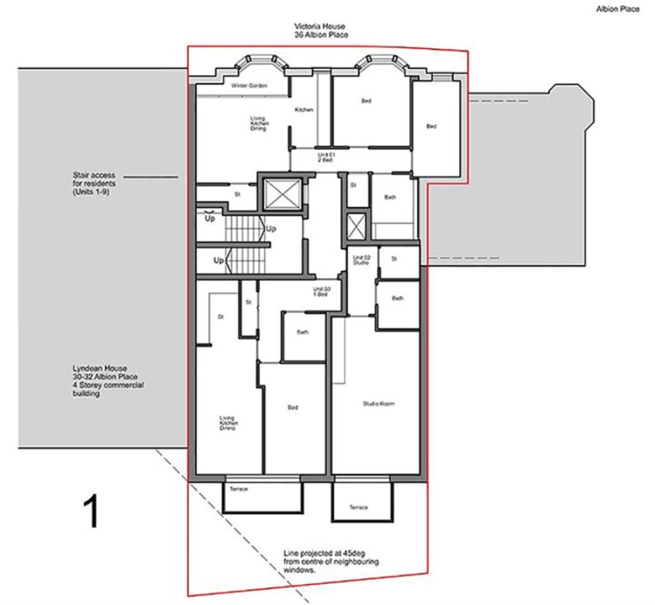
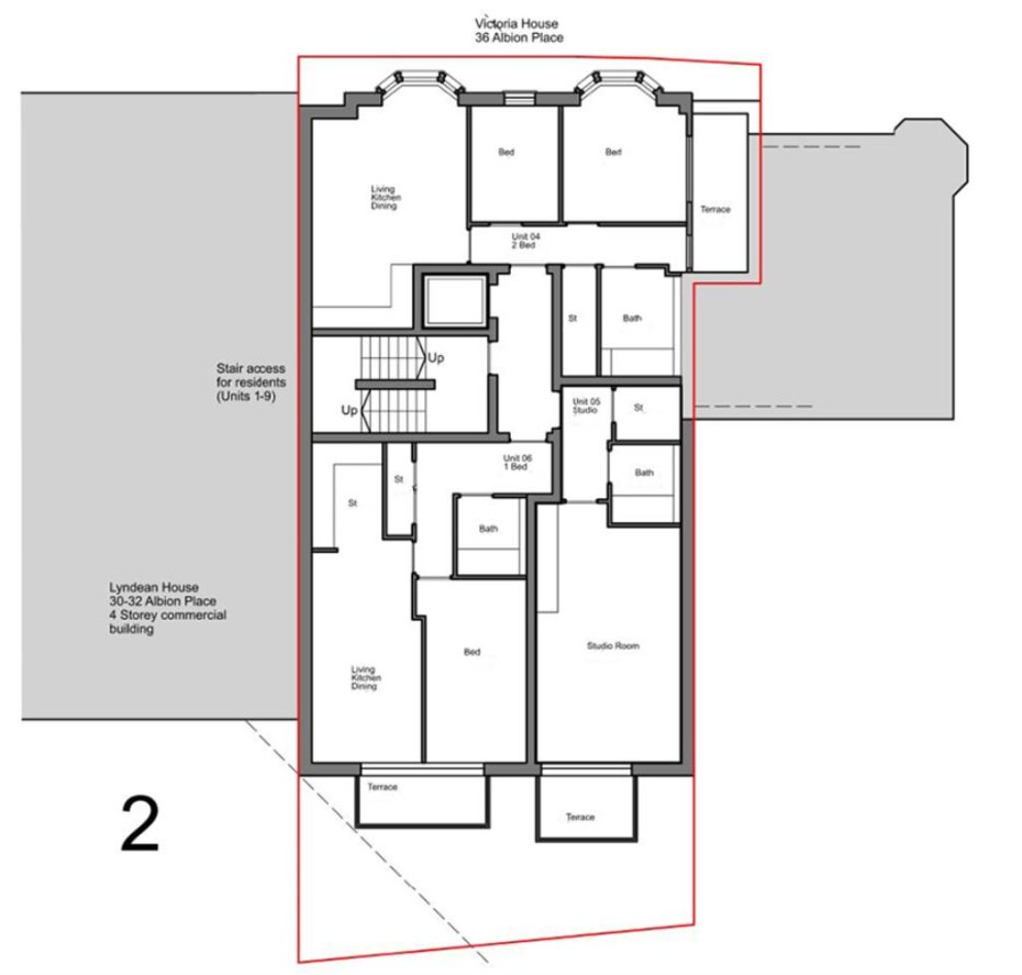
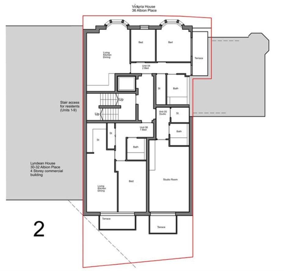
Proposed Accommodation
Ground Floor
Communal entrance, cycle store, refuse store and nine parking spaces.

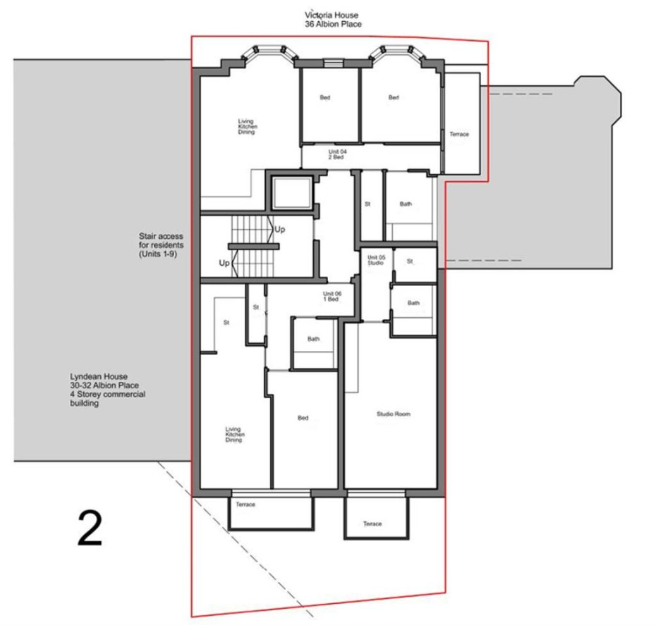
First Floor
Unit 1
Open plan kitchen/living room, two bedrooms and bathroom with W.C.

Unit 2
Studio with balcony and bathroom with W.C.

Unit 3
Open plan kitchen/living room, bedroom, balcony and bathroom with W.C.

Second Floor
Unit 4
Open plan kitchen/living room, two bedrooms, balcony and bathroom with W.C,.

Unit 5
Studio with balcony and bathroom with W.C.

Unit 6
Open plan kitchen/living room, bedroom, balcony and bathroom with W.C.

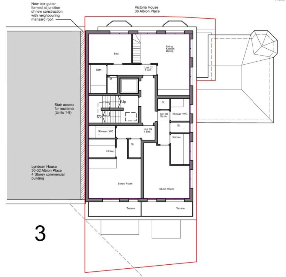
Third Floor
Unit 7
Open plan kitchen/living room, bedroom and bathroom with W.C.

Unit 8
Studio, kitchen, balcony and shower room with W.C.

Unit 9
Studio, kitchen, balcony and shower room with W.C.

EPC Rating
D (79). Total Floor Area 158 sq.m.

Freehold with Vacant Possession

Commercial EPC: D


Important:
All lots are sold subject to the Common Auction Conditions and Special Conditions of Sale (unless varied by the Sellers Solicitors), together with the Addendum, which will be available on the Auction Day.


Price Information
*Guides are provided as an indication of each Seller's minimum expectation. They are not necessarily figures at which a property will sell for and may change at any time prior to Auction. Unless stated otherwise, each Lot will be offered subject to a reserve (a figure below which the Auctioneer cannot sell the Lot during the Auction). We expect the reserve will be set within the guide range or no more than 10% above a single figure guide. Please check our website regularly at www.cliveemson.co.uk, or contact us on 01622 608400, in order to stay fully informed with the up-to-date information.

*An Administration fee and Other non-optional fees may also be payable in addition to the bid price. All lots are offered subject to the Common Auction Conditions and Special Conditions of Sale or Revised Special Conditions of Sale (as applicable) and may include the repayment of search and other fees and or costs payable by the buyer. All buyers are advised to inspect all available legal documentation prior to bidding and will be deemed to fully understand what they may be liable for if they are successful in purchasing. This should also include Stamp Duty, Land Registry fees and VAT which may become payable on completion in line with any property transaction, whether it is by auction or private treaty. If, as a buyer, you are in doubt you should seek advice from your own professional advisors. For more information on fees please go to www.cliveemson.co.uk/buyers-fees/

Find Professionals in your search area

Contact us via [email protected]