https://www.thelandsite.co.uk/files/properties/cbfbbb50603211e98dac024b03131eda/74-691e05a823a4a508045287.jpeg

Land for sale in Sandwich

Land 5 Mill Bank, Mill Lane, Eastry, Sandwich, Kent
For sale
£240,000
AUCTION PROPERTY
clive-emson-auctioneers
This property is marketed by:
Clive Emson Auctioneers
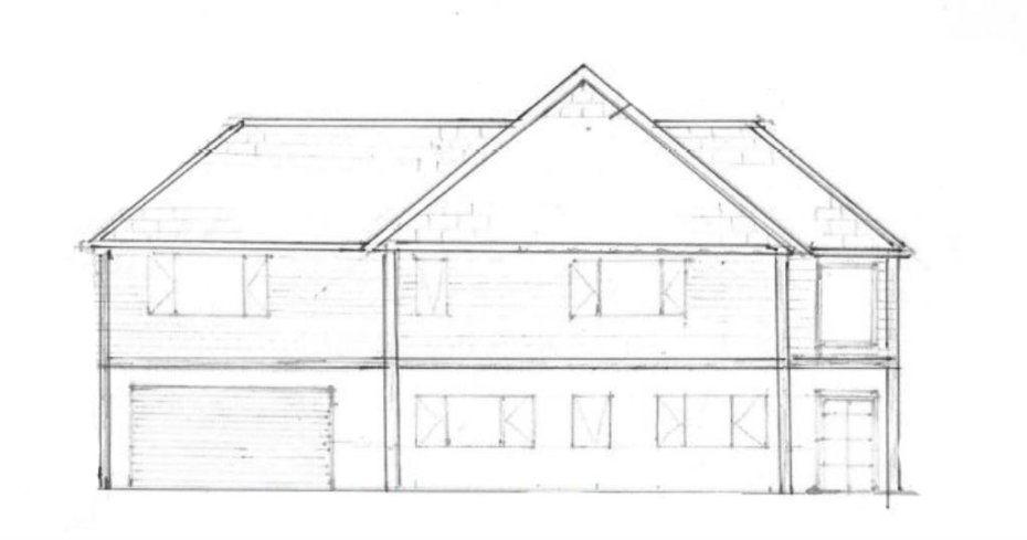
Situated in the popular village of Eastry with its range of local shops and facilities, this freehold site which lies in a semi-rural location is offered with Planning Permission for two detached houses.

Planning
Full Planning Permission has been granted by Dover District Council for the erection of two detached dwellings, new vehicle accesses and parking, dated 29th November 2022, subject to conditions. We understand planning has been implemented and full details will be contained in the legal documentation which will be available to download from the Clive Emson website.

A copy of the Planning Permission and accompanying documents may be downloaded from the Dover District Council website, dover.gov.uk. Tel: 01304 872486.

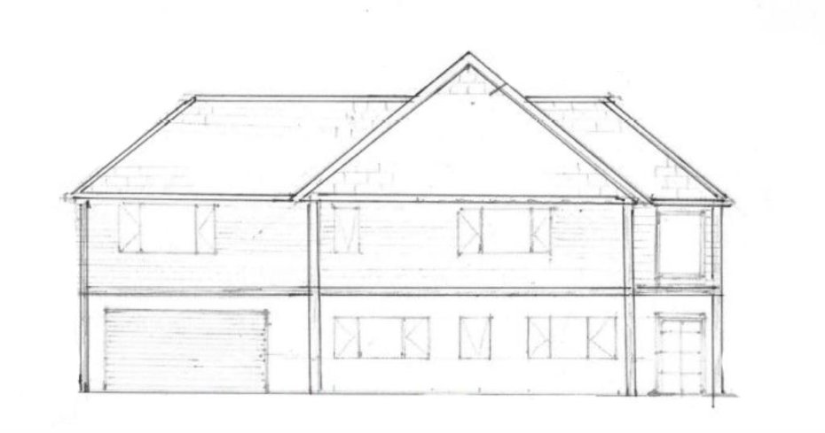
Proposed Accommodation
Plot 1
Ground Floor
Entrance hall with stairs to first floor, inner hallway, two bedrooms each with en-suite facilities, games room and utility.
First Floor
Open plan kitchen/lounge/dining room, cloakroom/W.C., main bedroom with en-suite and guest bedroom with en-suite.
Outside
Parking and rear garden.

Plot 2
Ground Floor
Entrance hallway, open plan kitchen/living room/dining room, snug/office, utility room and cloakroom/W.C.
First Floor
Main bedroom with walk-in wardrobe and en-suite, three further bedrooms and bathroom.
Outside
Off-road parking and rear garden.

viewing
On site during daylight hours.

Freehold with Vacant Possession

Important:
All lots are sold subject to the Common Auction Conditions and Special Conditions of Sale (unless varied by the Sellers Solicitors), together with the Addendum, which will be available on the Auction Day.


Price Information
*Guides are provided as an indication of each Seller's minimum expectation. They are not necessarily figures at which a property will sell for and may change at any time prior to Auction. Unless stated otherwise, each Lot will be offered subject to a reserve (a figure below which the Auctioneer cannot sell the Lot during the Auction). We expect the reserve will be set within the guide range or no more than 10% above a single figure guide. Please check our website regularly at www.cliveemson.co.uk, or contact us on 01622 608400, in order to stay fully informed with the up-to-date information.

*An Administration fee and Other non-optional fees may also be payable in addition to the bid price. All lots are offered subject to the Common Auction Conditions and Special Conditions of Sale or Revised Special Conditions of Sale (as applicable) and may include the repayment of search and other fees and or costs payable by the buyer. All buyers are advised to inspect all available legal documentation prior to bidding and will be deemed to fully understand what they may be liable for if they are successful in purchasing. This should also include Stamp Duty, Land Registry fees and VAT which may become payable on completion in line with any property transaction, whether it is by auction or private treaty. If, as a buyer, you are in doubt you should seek advice from your own professional advisors. For more information on fees please go to www.cliveemson.co.uk/buyers-fees/

Find Professionals in your search area

Contact us via [email protected]