https://www.thelandsite.co.uk/files/properties/7941550d07ce11eb900d0afeec538f48/1503-69030fbd4d97a324809979.jpeg

Development Site For Sale in Heanor, Derbyshire, DE75

Plot C, Pit Lane, Shipley, Heanor, Derbyshire, DE75 7JL
For sale
POA
barnsdales
This property is marketed by:
Barnsdales

Key Features

  • Freehold development land opportunities
  • Residential land
  • Garden Centre
  • Hotel
  • Retail & business units

Plot C is designated with a planning consent for a Hotel & Restaurant/Conference under planning uses classes A3, A4 & C1.

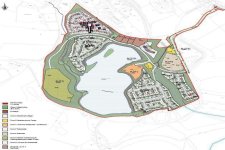
Shipley Lakes is a 114 acre site which was formerly the American Adventure Theme Park which operated on the site for 19 years and closed in 2007. In July 2012, it was announced that a project to redevelop the land into ''housing, offices and leisure facilities'' had been given the green light.

Situated at the heart of the Shipley Country Park this site comprises a major mixed use development incorporating a hotel, retirement village, a variety of housing, light industry, leisure and offices. The site incorporates a 30 acre lake which is a focus of the site and the overall development increasing its links to the greater area of the Shipley Country Park.

Harron Homes & Avant Homes have already built homes on the site and are continuing developing out their sites at Shipley Lakeside.


Find Professionals in your search area

Contact us via [email protected]