https://www.thelandsite.co.uk/files/properties/d1a1c9faa97111e98beb0afeec538f48/388-690307d288afc116167657.jpeg

Mixed Use Investment Property For Sale in London, SW16

74Moyser Road, Furzedown, SW16 6SQ
For sale
£175,000 Offers over
willmotts-chartered-surveyors
This property is marketed by:
Willmotts Chartered Surveyors

Key Features

  • ATTRACTIVE CORNER RETAIL UNIT - LET
  • PRODUCING £12,000 PER ANNUM
  • PART GF & FF MAISONETTE SOLD OFF
  • GROUND RENT INCOME £150.00 PA DOUBLING
  • GARAGE/STORAGE UNIT WITH COMMERCIAL UNIT
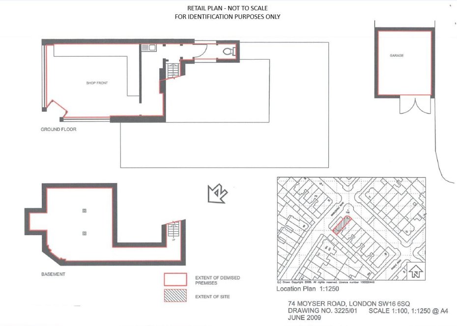
  • FLOOR AREA: 741 sq. ft. (69 sq. m.)

Location

The property is situated on Moyser Road, in the heart of Furzedown, a popular and sought-after residential area within the London Borough of Wandsworth. Moyser Road forms part of a well-established local parade serving the surrounding communit, with a mix of independent shops, cafés, and local services.

The area benefits from strong transport connections, with Streatham Common, Streatham, and Tooting mainline stations all within approximately 10–15 minutes’ walk, providing regular services into London Victoria, London Bridge, and other central London destinations. Several bus routes also operate nearby, connecting Furzedown with Balham, Tooting Broadway, and Streatham High Road.

Description

The property comprises a ground floor and basement commercial unit forming part of a traditional period terrace within a well-established local parade in the heart of Furzedown, SW16. The building occupies a prominent corner position, benefiting from a wide return frontage onto Ribblesdale Road, providing excellent visibility.

The ground and basement floors are arranged to provide a retail unit with ancillary storage and a garage/store to the rear. The accommodation is versatile and would suit a range of commercial occupiers, subject to the necessary consents.

In addition, there is a split-level maisonette arranged over part of the ground and first floors at the rear of the property, which has been sold off on a long leasehold interest.

User

We believe the premises fall under Class E & C3 of The Town and Country Planning (Use Classes) (Amendment) (England) Regulations 2020.

EPC

The Ground floor retail premises has an EPC rating of D (78). A copy of the EPC is available on request.


Find Professionals in your search area

Contact us via [email protected]