https://www.thelandsite.co.uk/files/properties/4dd70e088de811eaba390afeec538f48/1175-68f720ed9a76c605876970.jpeg

Development Site For Sale in Newent, GL18

Southend Lane, Newent, Gloucestershire, GL18 1JD
For sale
£1,100,000 Guide Price
AUCTION PROPERTY
connect-uk-auctions
This property is marketed by:
Connect UK Auctions

KEY FEATURES

  • Application Ref: P1711/22/FUL, planning granted 28 March 2025
  •  Forest of Dean District Council
  •  Nine detached Houses with garages
  •  Each plot is circa 0.35 acres each.
  •  Auction legal pack available by request.
  •  Viewings: no appointment required.
  •  Excellent Location
  •  Vacant Possession
  •  Freehold.

DESCRIPTION:

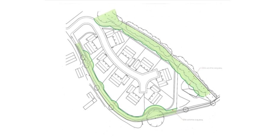
An outstanding opportunity, to acquire a three acres of freehold land with planning permission, for nine detached residential dwellings. Each plot is circa 0.35 acres each. Vacant possession.

ACCOMMODATION:

Full planning permission has been granted by Forest of Dean District Council for the:

"Erection of 9 dwellings with associated garages, landscaping, and parking"

(Application Ref: P1711/22/FUL, granted 28 March 2025)

The scheme includes 9 substantial detached homes, each with generous gardens and garaging.

Further details and associated planning documents can be accessed via the Forest of Dean District Council's planning portal and the auction legal pack.

LOCATION:

Newent is a market town and civil parish in the municipal district of Forest of Dean in Gloucestershire, England, though not in the "Royal Forest of Dean". The town is 11 miles (18 km) north-west of Gloucester.

TENURE:

Freehold

AUCTION DATE:

Connect Realtime® Bidding commences at 12:00pm with closing bids at 1pm TO BE SOLD AT AUCTION 16TH OCTOBER 2025.

The Lot is for sale via Traditional Auction. This is a timed auction, which requires both parties to complete the transaction within the completion date as per the auction legal pack. The buyer, is required to register, with Connect UK Auctions, in order to participate and will be required to go through, identification verification process. The auction Legal Pack, is available by request. You are required to complete your own due diligence prior to bidding. The Lot is subject to an undisclosed Reserve Price. The Reserve Price and Starting Bid being subject to change.

UNCONDITIONAL LOT:

Auction Fees apply, upon the fall of the gavel, as per the auction legal pack. The highest bidder, will also pay a deposit of 5% (minimum £5,000) of the hammer price and contracts are exchanged. The purchaser is legally bound to buy and the vendor is legally bound to sell the Property/Lot. The auction conditions require a full legal completion 42 days following the day of auction (unless otherwise requested, delayed completion available).

For enquiries, please ask to speak with Rob Jenkins

*Connect UK Auctions does not warrant or accept any responsibility for the accuracy or completeness of the property descriptions or related information provided here and they do not constitute property particulars. All displayed property boundaries use data provided by Land Registry and is assumed to be correct and updated regularly. However for the avoidance of doubt all displayed property boundaries are indicative and for marketing purposes only.


Find Professionals in your search area

Contact us via [email protected]