 
                 
                 
                 
                 
                 
                 
                 
                 
                 
                KEY FEATURES
DESCRIPTION
Two development opportunities, one former Mill building and one former Stable Block building, within the Orchard Grove Urban Extension.
Both are Grade II listed by association to Comeytrowe Manor.
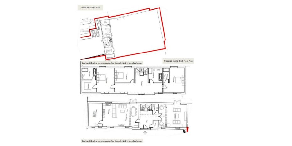
The former Stable Block building benefits from detailed planning permission for conversion to one substantial detached 3-bed dwelling.
Available as whole or as two separate lots.
Lot 1 - The Stable Block - £100,000
Lot 2 - The Old Mill - £50,000
As a whole - £150,000
The site extends, in total, to approximately 0.21-hectares (0.52-acres).
For sale by private treaty.
Featured professionals
Featured professionals
Contact us via [email protected]