https://www.thelandsite.co.uk/files/properties/cbfbbb50603211e98dac024b03131eda/74-68e57bd6458c9038671613.jpeg

Land for sale in Freshwater

Plots 18,19,20,21,24,25 & 26 Summers Court, Freshwater, Isle Of Wight
For sale
£750,000
AUCTION PROPERTY
clive-emson-auctioneers
This property is marketed by:
Clive Emson Auctioneers

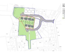
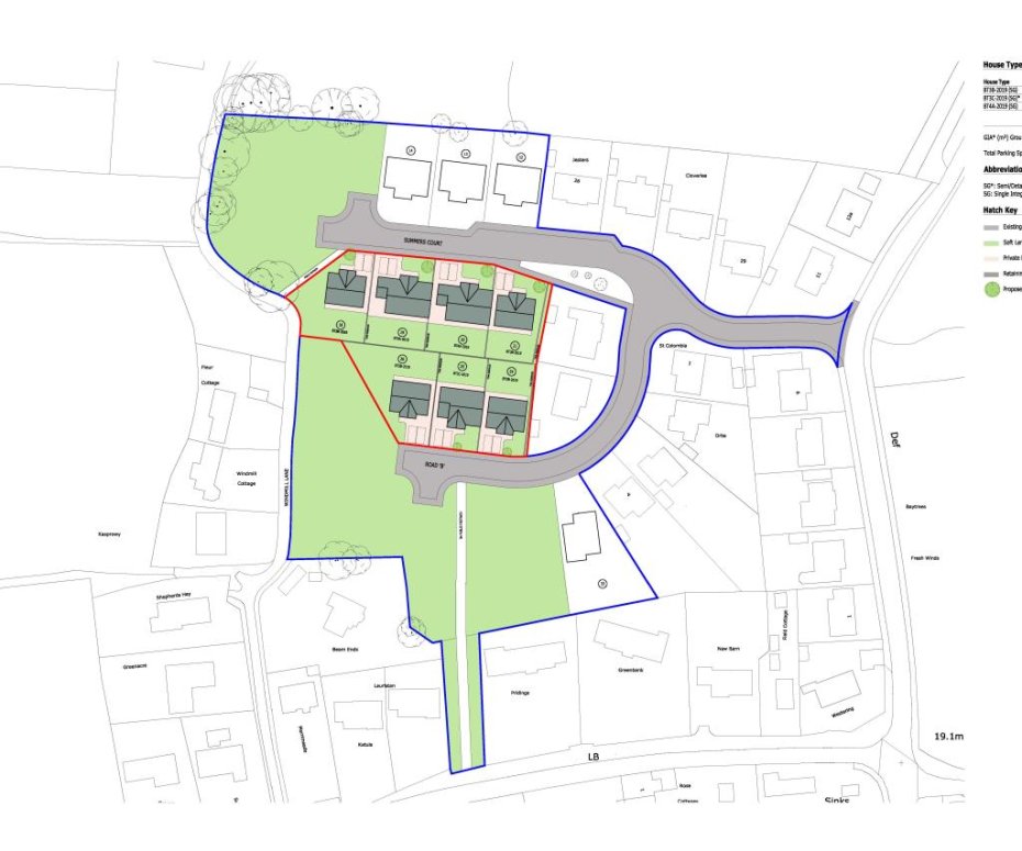
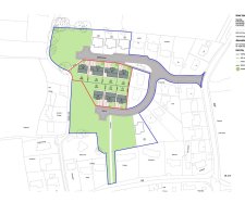
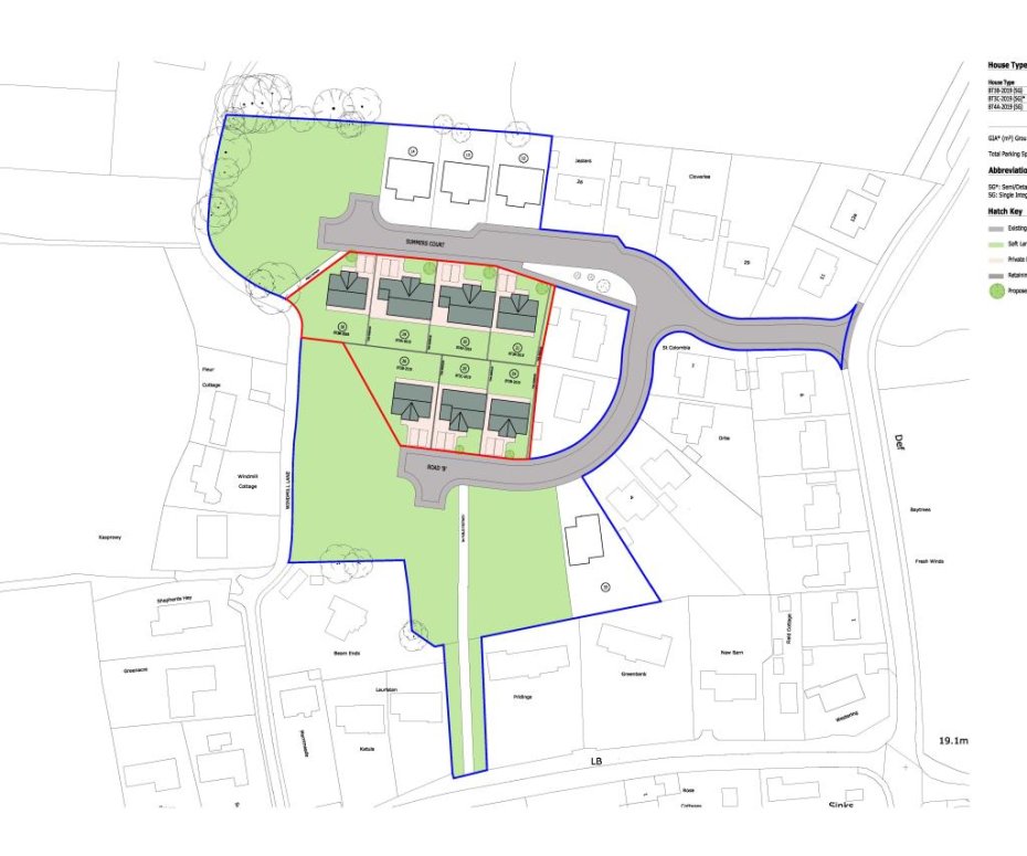
Summers Court has been developed piecemeal over the last 30+ years with detached bungalows enjoying this splendid location a short drive from the centre of Freshwater. The site extends to 0.35 hectares (0.86 acres) on a gently sloping site, which enjoys the most attractive views towards Afton Down which was the site of the famous 1970 Isle of Wight music festival reputedly attended by around 200,000 music lovers.

The site has the advantage of roadways having been previously supplied to service other development and we are advised that main services are also available subject to individual connection to the newly built bungalows, although of course prospective purchasers should rely on their own enquires.

Freshwater and indeed the western end of the Isle of Wight generally are a popular retirement location and with planning consent for new bungalows increasingly rare in this day and age. It is considered that the demand for the newly built units is likely to be strong.

Planning
Planning consent was originally obtained for a housing estate on land abutting Summers Lane and Court Road Freshwater under ref: TCP/2927 on 1st October 1952, subject to conditions.

As indicated, the site has been developed piecemeal since. The latest planning application to which the subject site can be referenced is under ref: 22/00076/ARM for Approval of Reserved Matters on TCP/2927 for layout, appearance, scale and landscaping for the construction of seven dwellings (revised description) (revised plans) (readvertised application) dated 31st March 2025, subject to conditions.

A copy of the Planning Permission and accompanying documents may be downloaded from the local planning authority. Isle of Wight Council. Website: iow.gov.uk. Tel: 01983 823552.

Local Planning Authority
Isle of Wight Council. Website: iow.gov.uk. Tel: 01983 823552.

Freehold with Vacant Possession

Important:
All lots are sold subject to the Common Auction Conditions and Special Conditions of Sale (unless varied by the Sellers Solicitors), together with the Addendum, which will be available on the Auction Day.


Price Information
*Guides are provided as an indication of each Seller's minimum expectation. They are not necessarily figures at which a property will sell for and may change at any time prior to Auction. Unless stated otherwise, each Lot will be offered subject to a reserve (a figure below which the Auctioneer cannot sell the Lot during the Auction). We expect the reserve will be set within the guide range or no more than 10% above a single figure guide. Please check our website regularly at www.cliveemson.co.uk, or contact us on 01622 608400, in order to stay fully informed with the up-to-date information.

*An Administration fee and Other non-optional fees may also be payable in addition to the bid price. All lots are offered subject to the Common Auction Conditions and Special Conditions of Sale or Revised Special Conditions of Sale (as applicable) and may include the repayment of search and other fees and or costs payable by the buyer. All buyers are advised to inspect all available legal documentation prior to bidding and will be deemed to fully understand what they may be liable for if they are successful in purchasing. This should also include Stamp Duty, Land Registry fees and VAT which may become payable on completion in line with any property transaction, whether it is by auction or private treaty. If, as a buyer, you are in doubt you should seek advice from your own professional advisors. For more information on fees please go to www.cliveemson.co.uk/buyers-fees/

Find Professionals in your search area

Contact us via [email protected]