https://www.thelandsite.co.uk/files/properties/cbfbbb50603211e98dac024b03131eda/74-68e57bd5985ee420679158.jpeg

Land for sale in Dartford

Hulberry Barn Off Lullingstone Lane, Eynsford, Dartford
For sale
£375,000
AUCTION PROPERTY
clive-emson-auctioneers
This property is marketed by:
Clive Emson Auctioneers
A freehold site situated in an elevated position on the outskirts of the very popular village of Eynsford. The land is in an excellent location with farmland to the front and rear and Planning Permission has been granted for demolition of the existing barn and replacement with a new dwelling.

Site Measurements
The site for development extends to 0.08 hectares (0.21 acres). This measurement excludes the roadway leading to the site which is included in the sale. The total site area including the roadway extends to 0.29 hectares (0.71 acres).

Planning
Planning Permission has been granted by Sevenoaks District Council under ref: 25/00763/FUL, dated 3rd July 2025, for demolition of
the existing barn and erection of a replacement building with new access and landscaping, subject to conditions.

A copy of the Planning Consent and accompanying documents may be downloaded from the Local Planning Authority website:
sevenoaks.gov.uk Tel: 01732 227000.

There is also a previous Planning Permission (which includes the adjoining site), for conversion of the existing building, subject to conditions. This was granted by Sevenoaks District Council under ref: 23/01882/FUL, dated 5th September 2023.

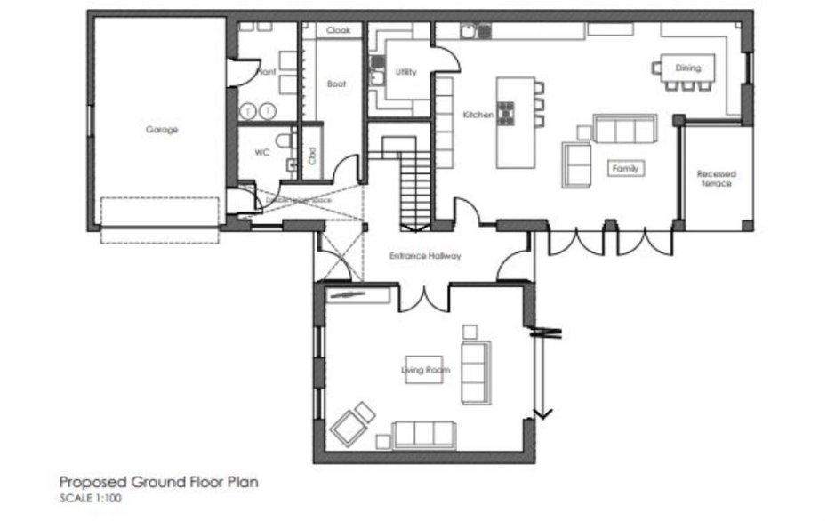
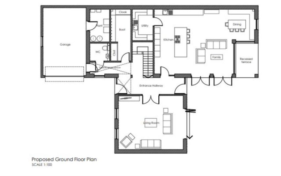
Proposed Accommodation
New Dwelling
Ground Floor
Entrance hall, large open plan room including kitchen, dining room and family room with access to recessed terrace, utility room, inner hallway leading to boot room and cloakroom with W.C. There is a large garage with access to the plant room.
First Floor
Landing, bedroom one with en-suite shower room and private terrace, bedroom two with en-suite shower room and walk-in wardrobe, bedrooms three and four. Family bathroom and bedroom five.

Directions
The property and land can be located using the What3Words App ref: ///moons.birds.simple

Freehold with Vacant Possession

Important:
All lots are sold subject to the Common Auction Conditions and Special Conditions of Sale (unless varied by the Sellers Solicitors), together with the Addendum, which will be available on the Auction Day.


Price Information
*Guides are provided as an indication of each Seller's minimum expectation. They are not necessarily figures at which a property will sell for and may change at any time prior to Auction. Unless stated otherwise, each Lot will be offered subject to a reserve (a figure below which the Auctioneer cannot sell the Lot during the Auction). We expect the reserve will be set within the guide range or no more than 10% above a single figure guide. Please check our website regularly at www.cliveemson.co.uk, or contact us on 01622 608400, in order to stay fully informed with the up-to-date information.

*An Administration fee and Other non-optional fees may also be payable in addition to the bid price. All lots are offered subject to the Common Auction Conditions and Special Conditions of Sale or Revised Special Conditions of Sale (as applicable) and may include the repayment of search and other fees and or costs payable by the buyer. All buyers are advised to inspect all available legal documentation prior to bidding and will be deemed to fully understand what they may be liable for if they are successful in purchasing. This should also include Stamp Duty, Land Registry fees and VAT which may become payable on completion in line with any property transaction, whether it is by auction or private treaty. If, as a buyer, you are in doubt you should seek advice from your own professional advisors. For more information on fees please go to www.cliveemson.co.uk/buyers-fees/

Find Professionals in your search area

Contact us via [email protected]